

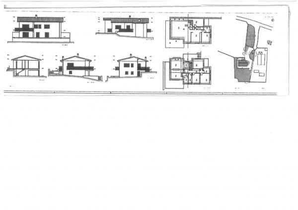
Via M. Buonarroti Proponiamo in vendita spettacolare villa su due livelli completamente fuori terra con doppio ingresso accatastata come due unità abitative adatta a due nuclei familiari. Terreno circostante di mq 4000 circa con alberi ad alto fusto diviso in settori La villa è posizionata in una zona residenziale dominante sul territorio circostante con caratteristica vista sul paese. a pochi minuti dalla via Dei Laghi dalla stazione ferroviaria di Marino e a tutti i primari servizi Piano terra si entra in un salone triplo con un grande camino con possibilità di personalizzazione ampia cucina abitabilissima doppi servizi camera studio ripostiglio grande patio dal quale si accede dalla cucina e dal salone. Primo Piano ampio disimpegno con armadio a muro camera padronale doppia cabina armadio camino accessoriata di servizio con doccia terrazza panoramica 3 camere matrimoniali servizio con vasca Nel giardino possibilità diversi posti un Pozzo artesiano oltre ad avere regolare allaccio Acea.
E' permesso visitare questo immobile muniti di dispositivi di protezione personale
Prezzo € 545.000,00
Immobiliare Without Limits